一、概述
高壓電氣設備溫度監測點都處于高電壓、大電流、強磁場的環境中,甚**有的監測點還處在密閉的空間中,由于強電磁噪聲和高壓絕緣、空間的限制等問題,通常的溫度測量方法無法解決這些問題導致無法使用。我公司自主開發設計的無線溫度監測系統采用無線電波進行信號傳輸。傳感器安裝在高壓設備上,與接收設備之間無電氣連接,因此該系統從根本上解決了高壓設備接點運行溫度不易實時在線監測的難題。
無線溫度監測系統具有**的**性和**性,可直接安裝到每臺高壓開關、母線接頭、戶外刀閘、變壓器等容易產生高溫的電氣接點處。系統配備標準通訊接口,可聯網運行。通過上位機軟件,可記錄高壓設備實時運行溫度的數據。為高壓設備的維修提供歷史數據,實現了高壓設備熱故障預知維護。
二、無線測溫系統結構
2.1 無線測溫系統結構圖

2.2 無線溫度傳感器
無線溫度傳感器用于測量高壓帶電物體表面或接點處的溫度,如高壓開關柜內的裸露觸點、母線連接處、戶外刀閘及變壓器等的運行溫度。無線溫度傳感器是由溫度傳感器、信號調制放大、邏輯控制電路、無線調制接口等組成(如下圖所示)。傳感器將采集到的溫度信號通過無線網絡發送到無線測溫主機。

主要功能:
主要功能 | 功能介紹 |
溫度檢測功能 | 實時檢測被測部位的當前溫度 |
供電電壓自檢功能 | 實時檢測傳感器自身的供電電壓值 |
所檢測到的數據全部通過無線上傳到接收主機 | |
2.3. 無線測溫裝置
無線測溫主機是一款集溫度傳感器工作狀態的監測. 現場溫度顯示,報警提示和輸出,事件記錄及數據記錄于一體的現場溫度監測儀,并可修改現場無線溫度傳感器的地址等參數。
無線測溫裝置

主要功能:
主要功能 | 功能介紹 | |
基本功能 | 接收數據 | 接收無線溫度傳感器上傳的溫度和傳感器工作電壓 |
顯示數據 | 彩色顯示接收到的數據,顯示效果更直觀,背光開關可控,適用多種應用場合 | |
時鐘顯示 | 實時時鐘顯示,并作為事件記錄的時間基準 | |
參數設置 | 所有參數靈活可設,操作方便,掉電數據不丟失 | |
報警輸出 | 當有報警事件發生時,繼電器干接點信號輸出并發出蜂鳴報警聲音提示 | |
溫度報警記錄 | 記錄曾發生過報警的測溫位置的溫度. 開始時間和結束時間,**多可保存 200條記錄,當超過 200 條記錄時,自動覆蓋**早的記錄 | |
密碼管理 | 采用密碼管理方式,設置參數時必須輸入密碼,密碼分為用戶密碼和系統密碼, 輸入系統密碼可進行更**的設置功能 | |
技術參數 | 技術指標 | ||||
無線參數 | 無線頻率 | 433MHz | |||
管理無線傳感器數量 | ≤252 只 | ||||
通訊參數 | 通訊接口 | RS485 通訊接口,通訊距離≤1200m(不加中繼) | |||
主機組網數量 | ≤128 臺 | ||||
通訊規約 | Modbus 規約《無線測溫系統通訊協議》 | ||||
波特率 | 1200. 2400. 4800. 9600. 19200 bps 可 選 | ||||
溫度告警值 | 上限值:+90℃,下限值:-20℃ 上限值:+60℃,下限值:-10℃ | ||||
告警電壓值 | 2700mV | ||||
繼電器干接點參數 | AC220V/**(1 組無源常開/常閉觸點) | ||||
工作電壓 | AC85~265V/DC110~370V | ||||
整機功耗 | ≤5VA | ||||
工作溫度 | -20℃~+70℃ | ||||
工作濕度 | ≤90%RH,不結露,無腐蝕 | ||||
海拔 | ≤2500 米 | ||||
防護等級 | IP20 | ||||
絕緣電阻 | ≥100MΩ(溫度在 10~30℃,相對濕度小于 80%) | ||||
安裝方式 | 壁掛式安裝、嵌入式 | ||||
三、顯示與參數設置
3.1 主顯示界面

▇ 顯示各個測溫點的部位名稱和溫度數據,每個部位分A,B,C三相分別用黃、綠、紅顯示。當某個測溫點離線時顯示“---”。
▇ 為了顯示直觀、2個開關柜或設備之間有一條灰色線條區分。
▇ **下邊信息欄分別顯示:環境溫度,系統接入傳感器的數量、當前預警信息數量、當前報警信息數量、**新事件記錄數量、報警聲開關。
▇ 當發生了預警和報警時下面信息欄會顯示當前預警和報警的數量,點擊可查看。當溫度恢復正常后預警信息、報警信息記錄自動清零。
▇ 當**近發生事件記錄時,信息欄下方會提示**近發生的事件記錄數量,點擊即可查看,可手動清空信息記錄。
3.2 菜單欄
點擊左上角
或在顯示器**左邊邊緣向右滑動即進入菜單界面。

菜單依次為:
當前數據查詢:點擊該菜單可進入測溫點溫度顯示界面。
事件及操作記錄查詢:點擊該菜單進入相關事件記錄查詢界面。
歷史數據查詢:點擊該菜單進入歷史數據查詢界面。
設備參數查詢:點擊該菜單進入設備參數查詢界面。
設備參數設置:點擊該菜單進入設備參數設置界面。
系統參數:點擊該菜單進入系統參數查詢和設置界面。
3.3 事件及操作記錄查詢
點擊事件及操作記錄查詢菜單后,進入以上界面,**左邊顯示相應的事件記錄,**右邊可選擇查詢那類事件記錄。

3.3.1 預警事件記錄
系統發生的預警事件,記錄了事件發生的時刻和發生時刻的溫度。

3.3.2 報警事件記錄
系統發生的報警事件,記錄了事件發生的時刻和發生時刻的溫度。

3.3.3 參數變更事件記錄
當系統發送參數變更時,生成參數變更事件記錄

3.3.4 傳感器恢復事件記錄
當傳感器溫度恢復正常時生成事件記錄

3.3.5 觸摸屏與總線設備通信異常事件記錄
當觸摸屏與總線通信異常時生成事件記錄,該功能需觸摸屏RS485總線上接入其它設備。

3.3.6 數據導出到Excel
點擊該菜單系統自動將所有事件記錄導入到Excel文檔,用戶可通過U盤將Excel文檔拷貝出。

3.4 歷史數據查詢
點擊進入歷史數據查詢菜單后,進入一下界面,界面的**左邊顯示查詢的內容,**右邊可選擇查詢歷史數據的類型即歷史曲線、歷史值、月**高溫度,同時可現在查詢任意一個測溫點的溫度數據,以及查詢的年度、月份和天數。
3.4.1歷史曲線查詢
可查詢任意一個測溫點具體時間段的歷史曲線記錄

3.4.2歷史值查詢
可查詢任意一個測溫點近一個月的歷史值數據記錄

3.4.3**高歷史溫度 可查詢任意一個測溫數據在當月**高溫度記錄

3.5設備參數查詢
點擊設備參數查詢進入如下界面 可以查看設備通訊地址以及各設備數據列表信息。

3.6 設備參數設置
點擊設備參數設置輸入密碼“5102”進入菜單后顯示以下界面,點擊相應的設備會進入到設備數據列表可對測溫點的名稱等進行配置,也可點擊右上方:從Excel表格導入設備參數設置,系統會自動從Excel表格導入設備參數。

3.6.1設備參數修改
點擊設備進入到設備信息列表,點擊相對應的增加按鈕即可增加新的設備顯示數據,點擊修改按鈕即可修改設備名稱,以及相對應的觸點顯示名稱。

一、 右劃出現菜單欄點擊文件管理器。

二、文件管理器里面找到路徑:0/EleBox/Elecel/ 用U盤把device文件拷貝出來。

三、插到電腦上打開文檔、按照現場安裝的柜名稱與測溫部位進行修改(注:只需要修改設備名稱和測溫部位即可)

3.7系統參數
點擊系統參數菜單后進入以下界面,可查看系統的各項參數,點擊設置菜單會彈出密碼輸入界面,輸入密碼”5102”后可對里面的每項參數進行設置。

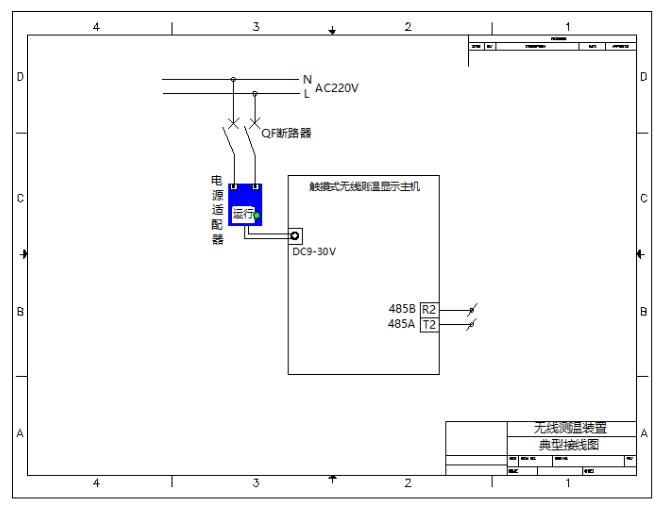
四、接線方式
五、外形尺寸及安裝方式


六、無線測溫系統典型組網方式

注:此圖為典型的組網方式,實際應用中根據項目情況可能有所改變。
附錄一:典型接線原理圖

附錄二:通訊規約
通訊協議 | ||
通訊規約 | Modbus RTU | |
通訊波特率 | 1200bps、2400bps、4800bps、9600bps(可選) | |
數據格式 | 數據位 | 8位 |
奇偶校驗位 | 無 | |
停止位 | 1位 | |
讀/寫命令 | 0x03 0x10 | |
寄存器地址表:
寄存器地址 | 寄存器內容 | 實際值 | 單位 | 備注 |
采集點溫度數據 | ||||
1501 | 采集點1溫度數據 | * 0.1 | ℃ | (16位有符號數據類型,高位在前) |
1502 | 采集點2溫度數據 | * 0.1 | ℃ | |
1503 | 采集點3溫度數據 | * 0.1 | ℃ | |
…… | …… | …… | …… | |
2218 | 采集點718溫度數據 | * 0.1 | ℃ | 注意:實際地址**大值根據采集點數量自動調整。例如集顯主機設置了100個測溫點,則地址**大值為100。 |
2219 | 采集點719溫度數據 | * 0.1 | ℃ | |
2220 | 采集點720溫度數據 | * 0.1 | ℃ | |
采集點供電電壓數據 | ||||
2501 | 采集點1電壓值 | mV | (16位無符號數據類型,高位在前) | |
2502 | 采集點2電壓值 | mV | ||
2503 | 采集點3電壓值 | mV | ||
…… | …… | …… | …… | ……. |
3218 | 采集點718電壓值 | mV | 注意:實際地址**大值根據采集點數量自動調整。例如集顯主機設置了100個測溫點,則地址**大值為100 | |
3219 | 采集點719電壓值 | mV | ||
3220 | 采集點720電壓值 | mV | ||
報警記錄 | ||||
1401 | **新1條報警記錄 | 每組共讀13個寄存器,26個字節。數據格式:點號 報警類型(0x0001: 高溫報警;0x0002: 低溫報警) 溫度值 供電電壓值 報警時間 -> 年 報警時間 -> 月(高8位)日(低8位) 報警時間 -> 時(高8位)分(低8位) 報警時間 -> 秒 保留位 恢復時間 -> 年 恢復時間 -> 月(高8位)日(低8位) 恢復時間 -> 時(高8位)分(低8位) 恢復時間 -> 秒 | ||
1402 | **新2條報警記錄 | |||
1403 | **新3條報警記錄 | |||
… | ……. | |||
1410 | **新10條報警記錄 | |||
注意:讀取采集點信息(溫度、電壓等)時,寄存器地址不能超過設置的采集點數量。
儀器儀表、自動化裝置、設備開發設計、生產、銷售于一體的化生產制造企業。
擁有一只高素質、求真務實的團隊,技術人員占員工總數39.2%
建立了具有功能齊全、設備專業的理化、計量測試和產品環境試驗。
我們將始終以顧客為關注點,以更好的產品質量、更好的服務來回報各界朋友。

注冊資本
4000㎡廠區面積
500+人員工
1000+案例